Skip to main content


LOADING

Unit 1b - 801 Dundas Street E Mississauga, Ontario L6Y 1G9

2800 sqft
Fully Air Conditioned Forced Air

$10 / ft2

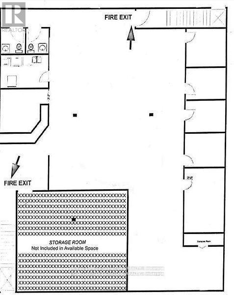
Basement Lower Level Retail Space For Lease!!! Join The Exciting Tenant Mix Of Tim Horton's, Restaurants, Medical, Dental, Pharma & Retail Stores. Located In the Dundas East Strip Of Mississauga. Many Uses Allowed. Perfect For: Gym, Dance/Ballet Studio, Yoga, Spa, Tutoring, Escape Room, Etc. **EXTRAS** (See Floorplan Attached) - Shell Space Includes 2 Washrooms Rough-In, Shower Rough-In, Built-Out Perimeter Offices, Boardroom, Kitchen Rough-In. Don't Miss This Opportunity To Locate Your Business In This Vibrant Plaza!!! (id:60365)

Property Details

MLS® Number W12515182
Property Type Retail
Community Name Applewood
AmenitiesNearBy Highway, Public Transit
FarmType Other

Building

CoolingType Fully Air Conditioned
HeatingFuel Natural Gas
HeatingType Forced Air
SizeInterior 2800 Sqft
UtilityWater Municipal Water

Land

Acreage No
LandAmenities Highway, Public Transit
ZoningDescription Commercial/retail

https://www.realtor.ca/real-estate/29073471/unit-1b-801-dundas-street-e-mississauga-applewood-applewood

Dwayne Kaan
Salesperson


Royal LePage Signature Realty
201-30 Eglinton Ave West
Mississauga, Ontario L5R 3E7

Your Favourites

 

No Favourites Found