Skip to main content
50728 results | Page 85 of 4228
12 24 48


LOADING

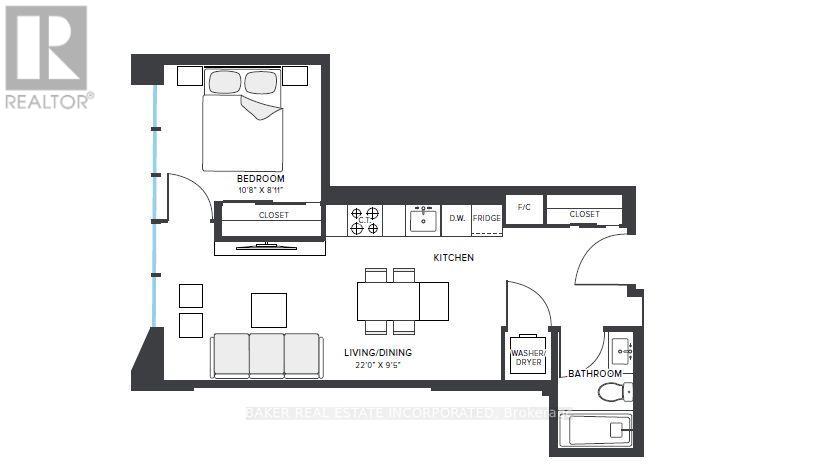
For sale
$596,000
70 - 23 ELDORA AVENUE, Toronto, Ontario

70 - 23 Eldora Avenue

Toronto, Ontario

Bright and modern condo townhouse located at Hendon Park (Yonge &Finch). This two-bedroom unit features smooth 9' ceilings, stainless steel appliances, and natural hardwood flooring on the main level. Just steps from Finch Subway Station, GO Transit, Viva, Hendon Park, shopping, and restaurants. Includes one parking space and one locker. (id:60365)

2 Bedroom 2 Bathroom 700 - 799 sqft
For rent
$1,800 Monthly
253 COLLEGE STREET, Toronto, Ontario

253 College Street

Toronto, Ontario

One bedroom available for sublease in a 4-bedroom, 2-bathroom unit at 253 College St. Sharedkitchen and shared bathroom. Coin-operated laundry on-site. Currently shared with three femaleUniversity of Toronto students. Prefer female tenant; male applicants subject to roommateapproval. Sublease term until end of August with option to renew. Prime location within walkingdistance to U of T, transit, and all amenities. (id:60365)

4 Bedroom 2 Bathroom 0 - 699 sqft
For rent
$2,900 Monthly
MAIN - 174 DELAWARE AVENUE, Toronto, Ontario

Main - 174 Delaware Avenue

Toronto, Ontario

Welcome to 174 Delaware Avenue-an inviting main-floor 2-bed 1-bath residence nestled in the vibrant Palmerston-Little Italy neighbourhood, perfect for young professionals, roommates, couples, or small families. This bright and beautifully laid-out home offers a rare blend of indoor comfort and outdoor living, complete with an exclusive, fully fenced backyard patio and gate access to two laneway parking spaces. ***All utilities, internet, 2x parking spaces, and landlords' furniture are included in the price.*** Inside, enjoy a sun-filled space with windows throughout, bringing in both morning and evening light. The open-concept living, dining, and kitchen area is perfect for relaxing or entertaining, featuring full-size stainless steel appliances and sleek finishes. Hardwood floors run throughout, adding warmth and character. The home offers a charming east-facing front bedroom overlooking the porch, front yard, and a mature tree-an ideal spot to start your day and a large middle bedroom. A modern full bathroom with tub and glass enclosure, along with a stacked full-size washer and dryer, adds everyday convenience. Offered furnished or partially furnished (tenants' furniture are captured in the photos), this home is flexible to suit your needs. Step outside and you're just moments from the best of city living-cafés, restaurants, and nightlife along Bloor Street, and only a 4-minute walk to Ossington subway station (Line 2). With easy access to Shaw Street bike routes and the downtown west core, this is a highly walkable, bike-friendly location with unbeatable energy. A perfect blend of lifestyle, location, and livability-don't miss it. (id:60365)

2 Bedroom 1 Bathroom 1500 - 2000 sqft
For sale
$1,594,000
108 LYNEDOCK CRESCENT, Toronto, Ontario

108 Lynedock Crescent

Toronto, Ontario

Stunning Family Bungalow in Prime Location, featuring three inviting bedrooms upstairs, each designed for comfort and privacy. The upper level also boasts modern pot lights that add a touch of elegance and brightness throughout. The main floor offers an open-concept living room, dining room, and family room with W/O to the Backyard, all adorned with rich hardwood floors that enhance the home's warmth and character. The 3-bedroom home features a master suite with walk-in closet and 4 PC modern bathrooms. The fully finished basement is a versatile space, complete with a side entrance, providing added convenience and privacy. It includes three additional bedrooms with comfortable laminate flooring, and two full bathrooms, making it ideal for guests , extended family , an in-law suite or extra living space. Relax in the fully fenced backyard, ideal for kids, pets, or entertaining. Move-in ready, this home blends style, comfort, and functionality in a sought-after neighbourhood. This bungalow perfectly combines style, comfort, and functionality, offering a welcoming environment for any homeowner. (id:60365)

6 Bedroom 4 Bathroom 1500 - 2000 sqft
For sale
$1,769,000
904 - 21 LAWREN HARRIS SQUARE, Toronto, Ontario

904 - 21 Lawren Harris Square

Toronto, Ontario

Welcome Home! This is truly a gem in the sky. A highly desirable corner unit boasting over 1200 sqft with premium, high end finishes and an eye for detail as featured in both Style at Home and House & Home Magazines. Spectacular natural light bathes the space from the massive floor to ceiling windows. It's modern living with calm serenity. Expansive 9ft. ceilings with exposed concrete and pillars are true loft attributes. The main room is expansive, open and inviting. This professionally designed space was customized to adapt to the floor plan and all of the well considered design elements come together in a one-of-a-kind living experience.Transforming a third bedroom into a more spacious living space gave the main sitting area space to spread out and the bespoke wood wall coverings hiding functional storage options. The open concept design has a dining room and a sit in kitchen which is designed for foodies with a massive island boasting a Bosch Induction cook top, a Bosch dishwasher and two wall mounted KitchenAid ovens. There's a Subzero fridge with an ice maker, a wine fridge and plenty of storage drawers and cabinets.The primary bedroom has its own private wing of the unit with a king size bedroom, custom doors, a walk in closet and spa like ensuite.The second bedroom is down its own hallway and offers light and privacy. It could double as an office space. The second washroom boasts beautifully designed Missoni wallpaper and a tub with shower. In the front entrance, multiple hidden closets help all your belongings disappear and keep your entryway clean.The icing on this beautiful cake is the massive 694 sqft wrap around terrace. With professional decking, artificial turf, custom lighting, large planters and gas hookup for the BBQ and fire pit. A memorable and inviting space to entertain and take in beautiful sunsets and spectacular views. Parking comes with an electric charger, a locker and two bike spots. It is a need to see!! (id:60365)

2 Bedroom 2 Bathroom 1200 - 1399 sqft
For rent
$3,500 Monthly
704 - 65 MUTUAL STREET, Toronto, Ontario

704 - 65 Mutual Street

Toronto, Ontario

Welcome to this bright and spacious 3 bedroom unit. each bedroom has bright windows. minutes to Dundas-Yonge square, Eaton center, Subway station, TMU, UofT, OCAD, restaurants, supermarkets. (id:60365)

3 Bedroom 2 Bathroom 800 - 899 sqft
For rent
$2,100 Monthly
2ND - 237 VAUGHAN ROAD, Toronto, Ontario

2nd - 237 Vaughan Road

Toronto, Ontario

Cozy and fully renovated 2nd Floor Apartment. Open concept, living, dining room, kitchen W/O to Deck west facing. Primary bedroom with cathedral ceiling with 4Pc Ensuite. self-contained Unit with separate entrance. On a quiet street, Just Steps from St. Clair minutes to subway & Cedarville Park, Close to all amenities, shopping, dining, cafe's. (id:60365)

1 Bedroom 1 Bathroom 700 - 1100 sqft
For sale
$1,498,000
970 BATHURST STREET, Toronto, Ontario

970 Bathurst Street

Toronto, Ontario

An exceptional opportunity for both investors and end-users! This well-maintained mixed-use property offers a rare combination of residential comfort and commercial potential in one of Toronto's most sought-after neighbourhoods. The upper levels feature two spacious and tastefully updated 2-bedroom residential units ($2500/mo + hydro) on the second and third floors, ideal for strong rental income or multi-generational living. A beautifully appointed junior 1-bedroom suite ($1500/mo + Hydro) adds further versatility, complete with its own private and secure courtyard-perfect for added tenant appeal or personal use. The main floor boasts a high-visibility commercial space ($3000/mo + Hydro), currently leased to a florist, providing immediate and stable income. Perfectly positioned in Toronto's iconic Annex neighbourhood, this property benefits from excellent street presence, steady pedestrian and transit traffic, and close proximity to the University of Toronto, vibrant Bloor Street amenities, and a dense residential catchment area (id:60365)

5 Bedroom 4 Bathroom
For sale
$590,000
19C FINCH AVENUE, Toronto, Ontario

19c Finch Avenue

Toronto, Ontario

Rare opportunity to acquire a well-established, turnkey Chinese restaurant in the heart of Willowdale, North York. Boasting a strong and loyal customer base with consistently high ratings across all major review and delivery platforms including Uber Eats, Door Dash, Skip The Dishes, and Fantuan. Operating 7 days a week with dine-in, takeout, and full delivery integration - offering multiple, proven revenue streams from day one. Exceptional street exposure within one of Toronto's most vibrant and high-density residential and commercial corridors. A truly plug-and-play business with an established brand, operational systems, and immediate cash flow potential. (id:60365)

1600 sqft
For rent
$2,463 Monthly
801 - 100 MILL STREET, Toronto, Ontario

801 - 100 Mill Street

Toronto, Ontario

RENT NOW AND RECEIVE 1 MONTH FREE! Bringing your net effective rate to $2,258 for a one year lease. (Offer subject to change. Terms and conditions apply). BRAND NEW 1 BED, 1 BATH 565sf SUITE. Option to have your unit Fully Furnished at an additional cost. Discover high-end living in the award-winning canary district community. Purpose-built boutique rental residence with award-winning property management featuring hotel-style concierge services in partnership with Toronto life, hassle-free rental living with on-site maintenance available seven days a week, community enhancing resident events and security of tenure for additional peace of mind. On-site property management and bookable guest suite, Smart Home Features with Google Nest Transit & connectivity: TTC streetcar at your doorstep: under 20 minutes to king subway station. Walking distance to Distillery District, St. Lawrence Market, Corktown Common Park, And Cherry Beach, with nearby schools (George Brown College), medical centres, grocery stores, and daycares. In-suite washers and dryers. Experience rental living reimagined. Signature amenities: rooftop pool, lounge spaces, a parlour, private cooking & dining space, and terraces. Resident mobile app for easy access to services, payment, maintenance requests and more! Wi-fi-enabled shared co-working spaces, state-of-the-art fitness centre with in-person and virtual classes plus complimentary fitness training, and more! *Offers subject to change without notice & Images are for illustrative purposes only. Parking is available at a cost. (id:60365)

1 Bedroom 1 Bathroom 500 - 599 sqft
For rent
$2,500 Monthly
517 - 151 MILL STREET, Toronto, Ontario

517 - 151 Mill Street

Toronto, Ontario

BRAND NEW, NEVER LIVED IN 1 BED, 1 BATH 534 sf SUITE - RENT NOW AND RECEIVE 1 MONTH FREE! Bringing your net effective rate to $2,292 for a one year lease. (Offer subject to change. Terms and conditions apply). Option to have your unit Fully Furnished at an additional cost. Discover high-end living in the award-winning canary district community. Purpose-built boutique rental residence with award-winning property management featuring hotel-style concierge services in partnership with Toronto life, hassle-free rental living with on-site maintenance available seven days a week, community enhancing resident events and security of tenure for additional peace of mind. On-site property management and bookable guest suite, Smart Home Features with Google Nest Transit & connectivity: TTC streetcar at your doorstep: under 20 minutes to king subway station. Walking distance to Distillery District, St. Lawrence Market, Corktown Common Park, And Cherry Beach, with nearby schools (George Brown College), medical centres, grocery stores, and daycares. In-suite washers and dryers. Experience rental living reimagined. Signature amenities: rooftop pool, lounge spaces, a parlour, private cooking & dining space, and terraces. Resident mobile app for easy access to services, payment, maintenance requests and more! Wi-fi-enabled shared co-working spaces, state-of-the-art fitness centre with in-person and virtual classes plus complimentary fitness training, and more! *Offers subject to change without notice & Images are for illustrative purposes only. Parking is available at a cost. (id:60365)

1 Bedroom 1 Bathroom 500 - 599 sqft
For rent
$2,540 Monthly
1003 - 181 MILL STREET, Toronto, Ontario

1003 - 181 Mill Street

Toronto, Ontario

BRAND NEW IN 1 BED, 1 BATH 538 sf SUITE - RENT NOW AND RECEIVE 1 MONTH FREE! Bringing your net effective rate to $2,328 for a one year lease. (Offer subject to change. Terms and conditions apply). Option to have your unit Fully Furnished at an additional cost. Discover high-end living in the award-winning canary district community. Purpose-built boutique rental residence with award-winning property management featuring hotel-style concierge services in partnership with Toronto life, hassle-free rental living with on-site maintenance available seven days a week, community enhancing resident events and security of tenure for additional peace of mind. On-site property management and bookable guest suite, Smart Home Features with Google Nest Transit & connectivity: TTC streetcar at your doorstep: under 20 minutes to king subway station. Walking distance to Distillery District, St. Lawrence Market, Corktown Common Park, And Cherry Beach, with nearby schools (George Brown College), medical centres, grocery stores, and daycares. In-suite washers and dryers. Experience rental living reimagined. Signature amenities: rooftop pool, lounge spaces, a parlour, private cooking & dining space, and terraces. Resident mobile app for easy access to services, payment, maintenance requests and more! Wi-fi-enabled shared co-working spaces, state-of-the-art fitness centre with in-person and virtual classes plus complimentary fitness training, and more! *Offers subject to change without notice & Images are for illustrative purposes only. Parking is available at a cost. (id:60365)

1 Bedroom 1 Bathroom 500 - 599 sqft
Search Properties
Your Favourites

 

No Favourites Found