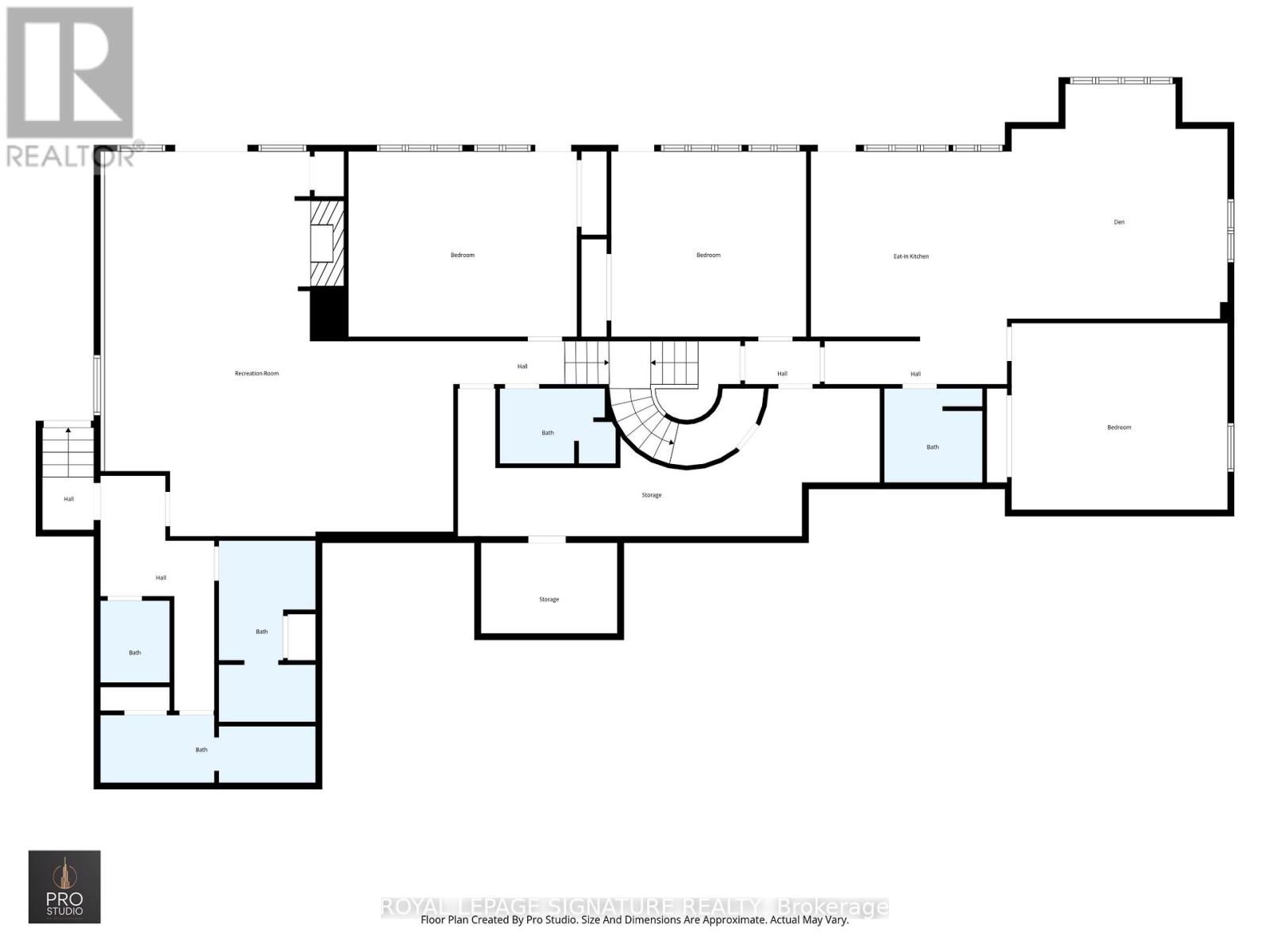
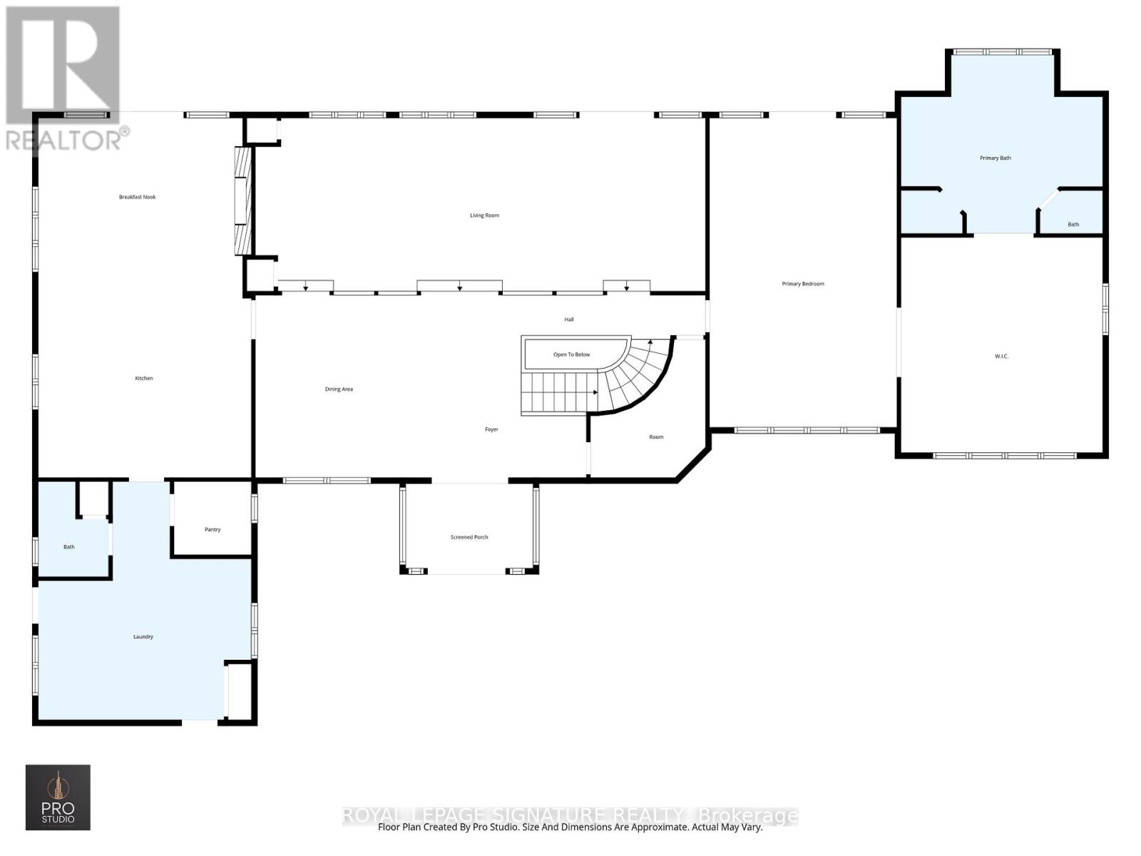
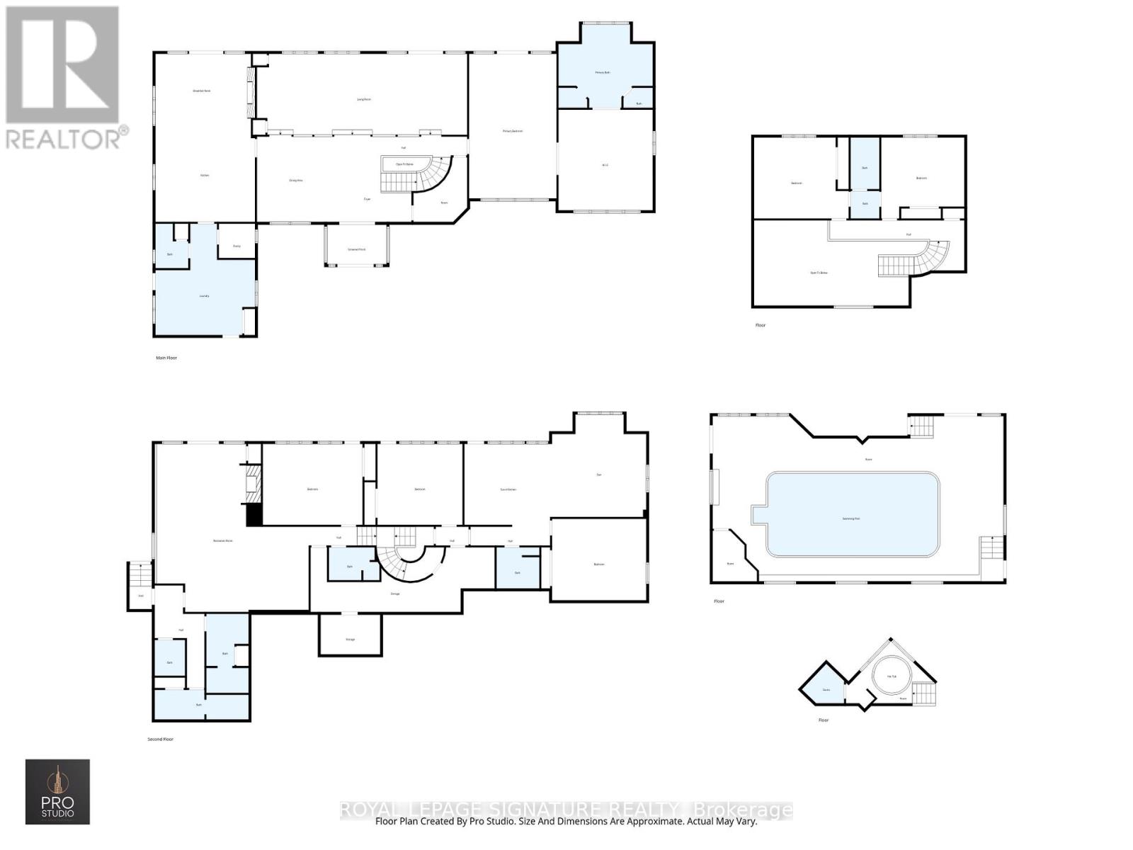
Set on nearly 2.5 acres of beautifully landscaped waterfront grounds, this fully renovated lakeside estate offers over 9,200 sq. ft. of luxurious living space. Thoughtfully designed for both entertaining and everyday living, the home features 6 bedrooms and 6 bathrooms, including a private guest, nanny, or in-law suite.At the heart of the home, a stunning 19' x 32' chef-inspired kitchen opens seamlessly to expansive living and dining areas, all positioned to capture breathtaking lake views. A resort-style indoor pool wing elevates the experience even further, offering year-round enjoyment with a 16' x 32' concrete saltwater pool, hot tub, sauna, cedar ceilings, custom lighting, and a Dectron Dry-O-Tron system.Exceptional craftsmanship is evident throughout, with 18'-21' vaulted ceilings on the main level, 10'-11' ceilings on the lower walkout, custom plaster crown mouldings, and architrave-trimmed millwork. A Mediterranean-style metal roof and two waterproof decks overlooking the lake complete the home's striking architectural presence.The property also offers a 3-car attached garage plus an oversized 2-car detached garage-ideal for vehicles, boats, or recreational equipment. Modern efficiency meets long-term reliability with two ground-source heat pumps (supported by 14 drilled wells), a 35 kW whole-home standby generator, propane backup pool heater, multi-zone forced air, and in-floor radiant heating.Enjoy true four-season waterfront living with boating, fishing, waterskiing, snowmobiling, and nature trails right at your doorstep-all just minutes to Fergus, Elora, and Guelph.From a replacement standpoint, the home carries an insurance appraisal of $5.7M in 2026-highlighting the significant cost and quality of construction, and underscoring the value embedded within the offering. (id:60365)
| MLS® Number | X12747748 |
| Property Type | Single Family |
| Community Name | Belwood |
| EquipmentType | Propane Tank |
| Features | In-law Suite |
| ParkingSpaceTotal | 18 |
| PoolFeatures | Salt Water Pool |
| PoolType | Indoor Pool |
| RentalEquipmentType | Propane Tank |
| Structure | Shed |
| BathroomTotal | 6 |
| BedroomsAboveGround | 3 |
| BedroomsBelowGround | 3 |
| BedroomsTotal | 6 |
| Appliances | Garage Door Opener Remote(s), Central Vacuum, Range, Water Heater - Tankless, Cooktop, Dishwasher, Dryer, Freezer, Microwave, Oven, Stove, Water Heater, Washer, Water Softener, Wine Fridge, Refrigerator |
| BasementDevelopment | Finished |
| BasementFeatures | Walk Out, Separate Entrance |
| BasementType | N/a (finished), N/a, Full |
| ConstructionStyleAttachment | Detached |
| CoolingType | Central Air Conditioning, Air Exchanger |
| ExteriorFinish | Brick |
| FireplacePresent | Yes |
| FoundationType | Poured Concrete |
| HeatingFuel | Electric |
| HeatingType | Heat Pump |
| StoriesTotal | 2 |
| SizeInterior | 5000 - 100000 Sqft |
| Type | House |
| UtilityPower | Generator |
| Other | |
| Garage |
| Acreage | No |
| Sewer | Septic System |
| SizeDepth | 360 Ft ,9 In |
| SizeFrontage | 220 Ft ,1 In |
| SizeIrregular | 220.1 X 360.8 Ft |
| SizeTotalText | 220.1 X 360.8 Ft |
| Level | Type | Length | Width | Dimensions |
|---|---|---|---|---|
| Lower Level | Kitchen | 4.75 m | 4.45 m | 4.75 m x 4.45 m |
| Lower Level | Recreational, Games Room | 5.2 m | 9.22 m | 5.2 m x 9.22 m |
| Lower Level | Bedroom 4 | 5.21 m | 4.5 m | 5.21 m x 4.5 m |
| Lower Level | Bedroom 5 | 4.7 m | 4.5 m | 4.7 m x 4.5 m |
| Lower Level | Bedroom | 5 m | 4.25 m | 5 m x 4.25 m |
| Main Level | Kitchen | 5.41 m | 5.56 m | 5.41 m x 5.56 m |
| Main Level | Other | 15.88 m | 9.3 m | 15.88 m x 9.3 m |
| Main Level | Living Room | 11.1 m | 4.34 m | 11.1 m x 4.34 m |
| Main Level | Dining Room | 4.45 m | 4.6 m | 4.45 m x 4.6 m |
| Main Level | Eating Area | 5.41 m | 3.7 m | 5.41 m x 3.7 m |
| Main Level | Primary Bedroom | 4.8 m | 7.91 m | 4.8 m x 7.91 m |
| Upper Level | Bedroom 2 | 4.88 m | 4.39 m | 4.88 m x 4.39 m |
| Upper Level | Bedroom 3 | 4.39 m | 3.68 m | 4.39 m x 3.68 m |
https://www.realtor.ca/real-estate/29311846/58-amalia-crescent-centre-wellington-belwood-belwood
Jason Pacheco
Salesperson
Sam Giuliano
Salesperson