Skip to main content


LOADING

51 - 5620 Rockdale Road Ottawa, Ontario K0A 3H0

2 Bedroom 2 Bathroom 700 - 1100 sqft
Bungalow Wall Unit, Air Exchanger Heat Pump

$291,593

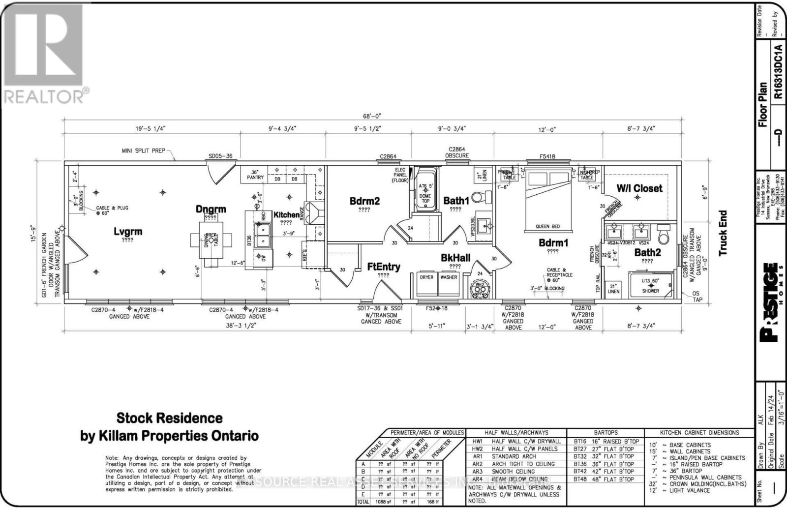
Price reduced for quick sale! Due to overstock in the land lease communities, the seller is aggressively selling these homes! Welcome to Rockdale Ridge, a stunning land-lease community with 1/2 acre lots, offering country living close to Ottawa. This brand-new construction by Prestige Homes features modern finishes, ample kitchen cabinetry, quality flooring, and a canopy hood fan. Large windows and a slanted roofline provide abundant natural light from the southeast. The layout includes an elongated hallway with a laundry area, a spacious main bedroom, walk-in closet, and an ensuite bath. Heating is primarily provided by an efficient heat pump. The home is built on an insulated concrete pad that also offers approximately 18 inches of dry storage. Rockdale Ridge is located 3 km from Highway 417, 14 km from Embrun, and 20 km from Ottawa, with walking trails, schools, and shopping nearby. Land-lease fees are $791 per month, including taxes and garbage collection. Note that this brand new home is HST applicable and also qualifies for the Federal HST rebate. *For Additional Property Details Click The Brochure Icon Below* (id:60365)

Property Details

MLS® Number X12574046
Property Type Single Family
Community Name 1112 - Vars Village
Features Carpet Free
ParkingSpaceTotal 4

Building

BathroomTotal 2
BedroomsAboveGround 2
BedroomsTotal 2
Amenities Separate Heating Controls
Appliances Water Heater
ArchitecturalStyle Bungalow
BasementType None
CoolingType Wall Unit, Air Exchanger
ExteriorFinish Vinyl Siding
FoundationType Slab
HeatingFuel Electric
HeatingType Heat Pump
StoriesTotal 1
SizeInterior 700 - 1100 Sqft
Type Mobile Home
UtilityWater Municipal Water

Parking

No Garage

Land

Acreage No
Sewer Holding Tank

Rooms

Level Type Dimensions
Main Level Family Room 5.94 m x 4.9 m
Main Level Kitchen 3.65 m x 2.89 m
Main Level Bedroom 2.89 m x 2.74 m
Main Level Laundry Room 1.5 m x 0.9 m
Main Level Bathroom 2.7 m x 2.8 m
Main Level Bedroom 4.9 m x 3.7 m
Main Level Bathroom 2.74 m x 2.65 m
Main Level Other 2.65 m x 2.1 m

Utilities

Cable Available
Electricity Installed
Sewer Installed

https://www.realtor.ca/real-estate/29134311/51-5620-rockdale-road-ottawa-1112-vars-village

James Tasca
Broker of Record


Ici Source Real Asset Services Inc.

Your Favourites

 

No Favourites Found