Skip to main content


LOADING

361 Cannon Street E Hamilton, Ontario L8L 2C3

4 Bathroom 11184 sqft
Fully Air Conditioned Forced Air

$17 Monthly

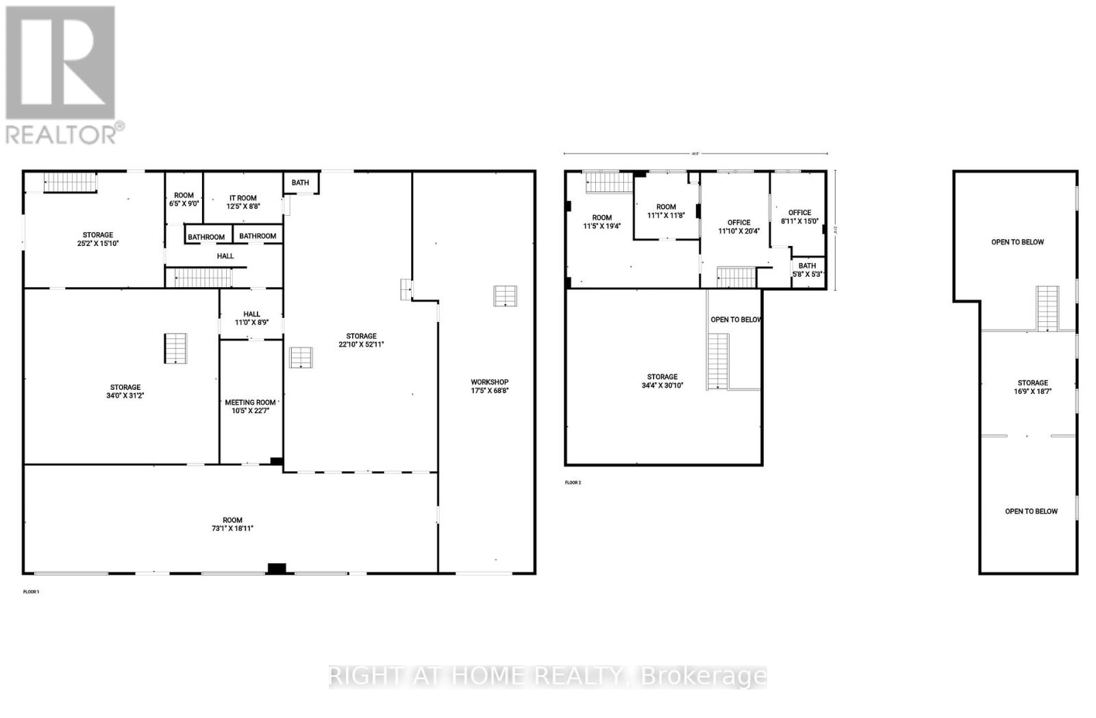
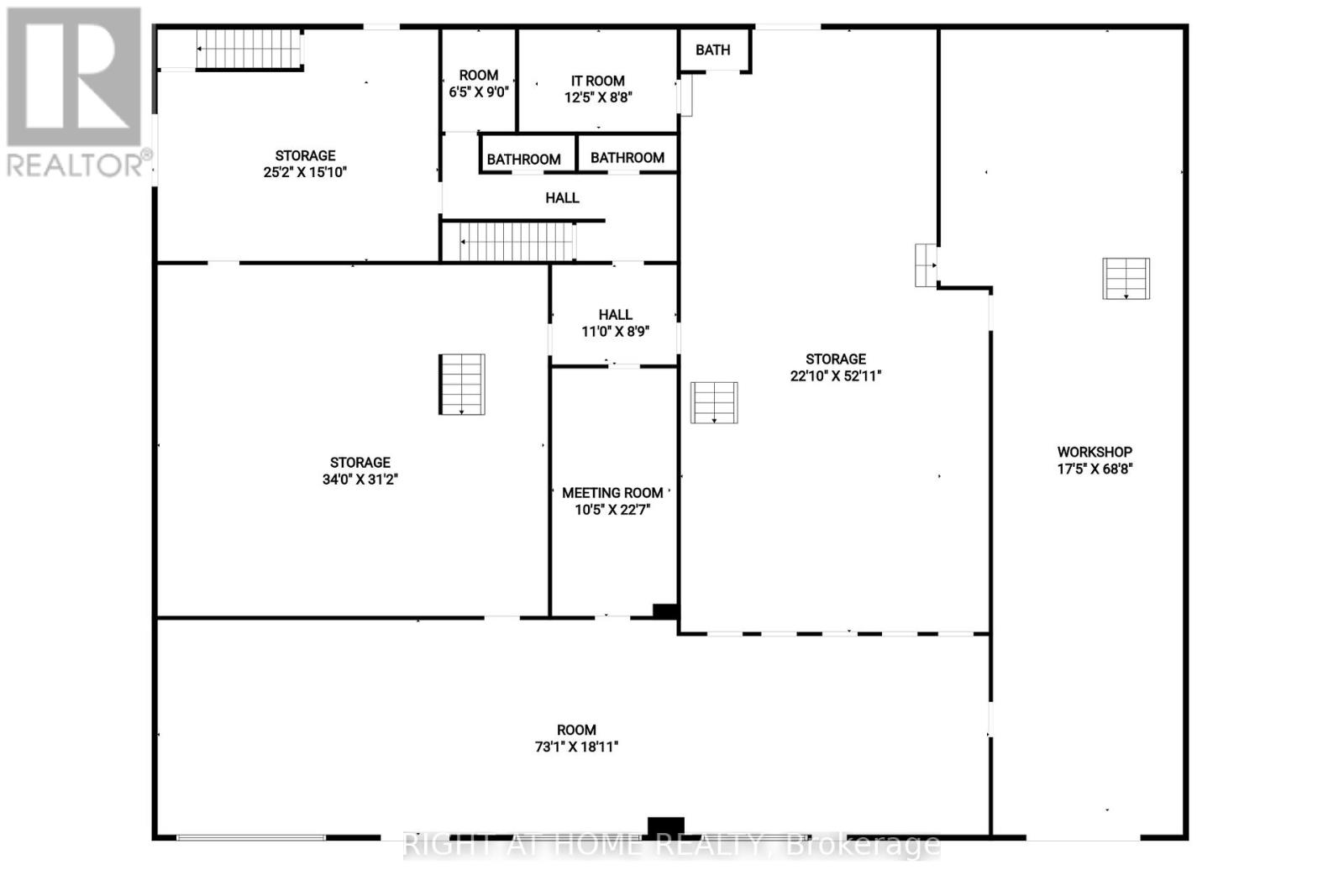
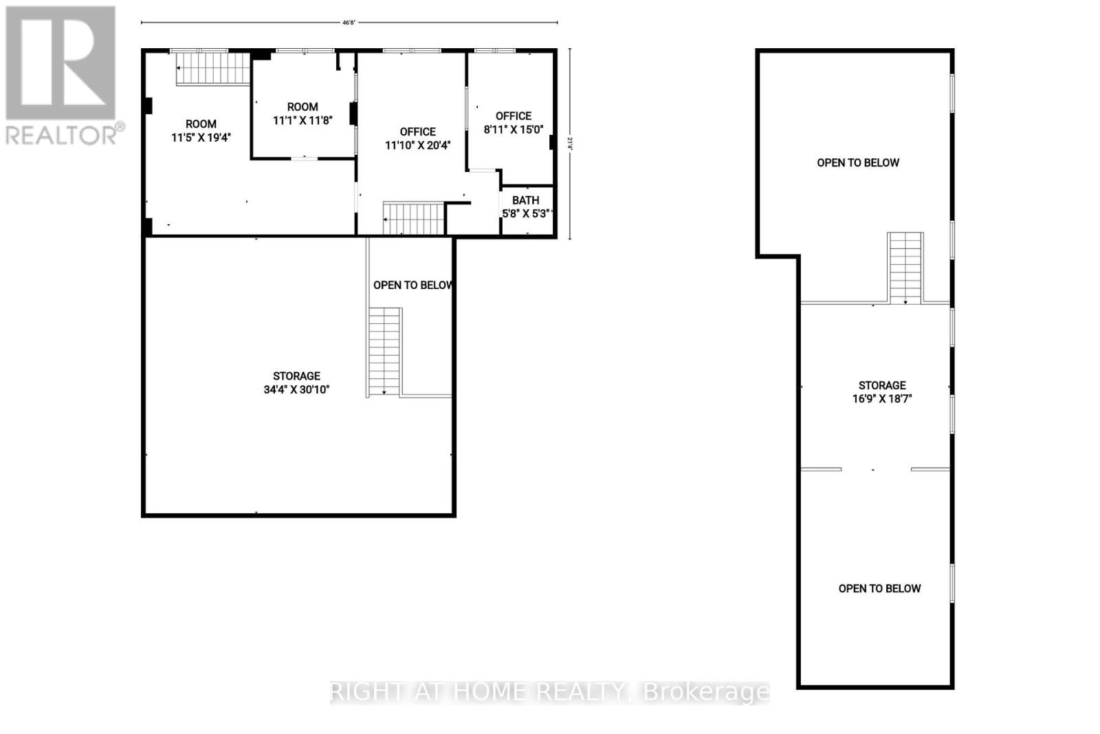
Prime Commercial Building with Additional Parking Lot For Lease in Downtown Hamilton with Drive in bay and office space. A fantastic opportunity to lease a freestanding commercial building with 7,568 sq ft of flexible space, ideally situated in a high-traffic, high-visibility area of Downtown. With a generous lot size 97.11 ft x 115.24 ft and BOUNS vacant parking lot 371 Cannon Street East 90.19 ft x 39.07 ft it makes perfect place for staff and customer access approximately 25 parking available. The main property has been most recently used as an auto parts store. Zoned C2, this property supports a wide range of commercial uses such as medical Clinic, Veterinary Service, Financial Establishment, Retail and much more making it ideal for various types of businesses looking to grow or relocate. Whether you're launching a new venture or expanding your current operations, this space offers exceptional flexibility, zoning advantages and well-established commercial corridor with strong foot and vehicle traffic and rare on-site parking in the heart of the city. (id:60365)

Business

BusinessType Automobile
BusinessSubType Automotive

Property Details

MLS® Number X12328736
Property Type Retail
Community Name Landsdale
AmenitiesNearBy Highway, Public Transit
EquipmentType Water Heater
Features Irregular Lot Size
ParkingSpaceTotal 25
RentalEquipmentType Water Heater

Building

BathroomTotal 4
CoolingType Fully Air Conditioned
HeatingFuel Natural Gas
HeatingType Forced Air
SizeExterior 11183.69 Sqft
SizeInterior 11184 Sqft
UtilityWater Municipal Water

Land

Acreage No
LandAmenities Highway, Public Transit
SizeDepth 115 Ft
SizeFrontage 95 Ft ,6 In
SizeIrregular Bldg=95.5 X 115 Ft ; 115.24 Ft X 97.11 Ftx115.44 Ftx97.06 Ft
SizeTotalText Bldg=95.5 X 115 Ft ; 115.24 Ft X 97.11 Ftx115.44 Ftx97.06 Ft
ZoningDescription C2

https://www.realtor.ca/real-estate/28699433/361-cannon-street-e-hamilton-landsdale-landsdale

Burim Hashani
Salesperson


Right At Home Realty
5111 New Street Unit 104
Burlington, Ontario L7L 1V2

Imtiaz Kiani
Salesperson


Right At Home Realty, Brokerage
5111 New St - Suite #102
Burlington, Ontario L7L 1V2

Your Favourites

 

No Favourites Found