Skip to main content


LOADING

24 - 13071 Yonge St Street Richmond Hill, Ontario L4E 1A5

1 Bathroom
Fully Air Conditioned Forced Air

$179,990

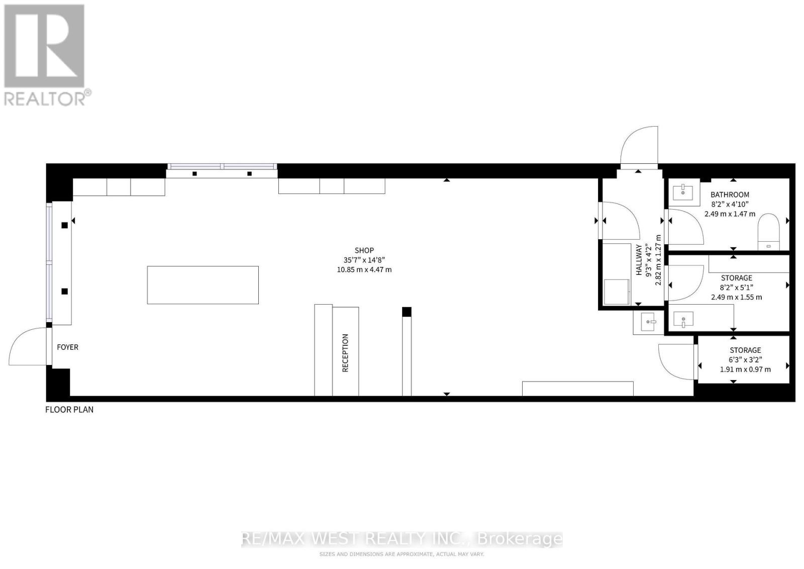
Thriving Turnkey Beauty Supply & Spa Business for Sale Prime Oak Ridges Richmond Hill Location! An incredible opportunity awaits! Own a well-established, fully renovated beauty supply and spa business, nestled in one of the busiest, high-traffic plazas in the area. Surrounded by top-tier anchor businesses including No Frills, Starbucks, and popular restaurants, this location guarantees non-stop visibility and foot traffic. Step into a beautifully designed, modern retail space renovated top to bottom with high-end finishes, custom-built shelving, and a professionally curated layout that maximizes both style and function. The back of the space features a fully equipped Beauty Spa, offering a wide range of in-demand aesthetic and beauty services in a serene and luxurious environment. This business is a one-stop destination for beauty lovers and professionals alike. It proudly carries a wide selection of luxury, high-demand beauty brands, serving the public as well as a loyal network of hair stylists, aestheticians, and other beauty industry professionals. With a large, loyal client database, a strong reputation, and consistent sales, this business is profitable from day one. Perfect for an entrepreneur or seasoned industry professional looking to step into a successful and fully operational business with tremendous growth potential. The sale of this business includes all furniture, equipment, inventory, and goodwill (a loyal, repeat customer base ensures ongoing success). Whether you're expanding your portfolio or following your passion, this is a golden opportunity to make your mark in the booming beauty industry. A great long term lease in place at the monthly rate of $3,700 taxes in. (id:60365)

Business

BusinessType Personal Services
BusinessSubType Barber/beauty shop

Property Details

MLS® Number N12370051
Property Type Business
Community Name Oak Ridges Lake Wilcox

Building

BathroomTotal 1
Appliances Furniture
CoolingType Fully Air Conditioned
HeatingFuel Natural Gas
HeatingType Forced Air
UtilityWater Municipal Water

Land

Acreage No
SizeDepth 45 Ft
SizeFrontage 20 Ft
SizeIrregular Unit=20 X 45 Ft
SizeTotalText Unit=20 X 45 Ft
ZoningDescription Commercial

https://www.realtor.ca/real-estate/28790187/24-13071-yonge-st-street-richmond-hill-oak-ridges-lake-wilcox-oak-ridges-lake-wilcox

David Buriev
Salesperson


RE/MAX West Realty Inc.
141 King Road Unit 11
Richmond Hill, Ontario L4E 3L7

Alizeh Shah Aslam
Salesperson


RE/MAX West Realty Inc.
141 King Road Unit 11
Richmond Hill, Ontario L4E 3L7

Your Favourites

 

No Favourites Found