Skip to main content


LOADING

204a - 716 Gordon Baker Road Toronto, Ontario M2H 3B4

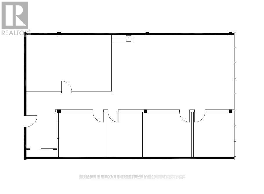
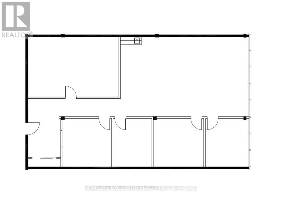
2064 sqft
Fully Air Conditioned Forced Air

$11 / ft2

Prime Location! Situated near the junction of Hwy 404 and Steeles Avenue, with easy access to Woodbine Avenue, DVP, Hwy 401, and Hwy 407, this office unit boasts unparalleled convenience. Featuring three spacious office rooms, a well-appointed boardroom, a generously-sized open office area, a convenient kitchenette, and a welcoming reception area, this space is ideal for any business looking to thrive in a strategic and accessible location. (id:60365)

Property Details

MLS® Number C12489382
Property Type Office
Community Name Hillcrest Village

Building

CoolingType Fully Air Conditioned
HeatingFuel Natural Gas
HeatingType Forced Air
SizeInterior 2064 Sqft
Type Offices
UtilityWater Municipal Water

Land

Acreage No
ZoningDescription Office

https://www.realtor.ca/real-estate/29046812/204a-716-gordon-baker-road-toronto-hillcrest-village-hillcrest-village

Victor Sing
Broker of Record


Homelife Excelsior Realty Inc.
4560 Highway 7 East Suite 800
Markham, Ontario L3R 1M5

Your Favourites

 

No Favourites Found