Skip to main content


LOADING

198 Welland Street Port Colborne, Ontario L3K 5V8

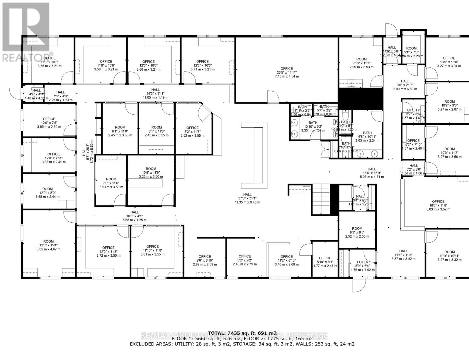
3 Bathroom 7435 sqft
Fully Air Conditioned Forced Air

$18 / ft2

East Village | Canal Side Flex Office/Industrial at the SW corner of Clarence St & Welland St steps to the Welland Canal. The property offers ~ 8,000 sf across two levels with ~25 private offices, collaboration rooms and a paved onsite lot. Paved parking area for 30+ vehicles. Current layout supports office, professional services, technical trades, training/education and light industrial users. The Light Industrial zoning is exceptionally versatile, allowing contractors yard, light industry, education facility, motor vehicle repair, research facility, and accessory office/retail/restaurant options, among others. City is very supportive of improving the area. The location benefits from Port Colborne's record cruise season (70+ stops Apr - Oct) and continued waterfront activity. Well built free standing building. (id:60365)

Property Details

MLS® Number X12381653
Property Type Industrial
Community Name 876 - East Village
AmenitiesNearBy Highway
ParkingSpaceTotal 40

Building

BathroomTotal 3
CoolingType Fully Air Conditioned
HeatingFuel Natural Gas
HeatingType Forced Air
SizeExterior 7435 Sqft
SizeInterior 7435 Sqft
UtilityWater Municipal Water

Land

Acreage No
LandAmenities Highway
SizeFrontage 7435 Ft
SizeIrregular Bldg=7435 Ft
SizeTotalText Bldg=7435 Ft
ZoningDescription Light Industrial

https://www.realtor.ca/real-estate/28815473/198-welland-street-port-colborne-east-village-876-east-village

Amanda Hoolihan
Broker


RE/MAX Aboutowne Realty Corp.
1235 North Service Rd W #100d
Oakville, Ontario L6M 3G5

Rakesh Kumar Gupta
Broker


International Realty Firm, Inc.
2 Sheppard Avenue East, 20th Floor
Toronto, Ontario M2N 5Y7

Your Favourites

 

No Favourites Found