Skip to main content


LOADING

198 Welland Street Port Colborne, Ontario L3K 5V8

8300 sqft
Fully Air Conditioned Forced Air Acreage

$1,490,000

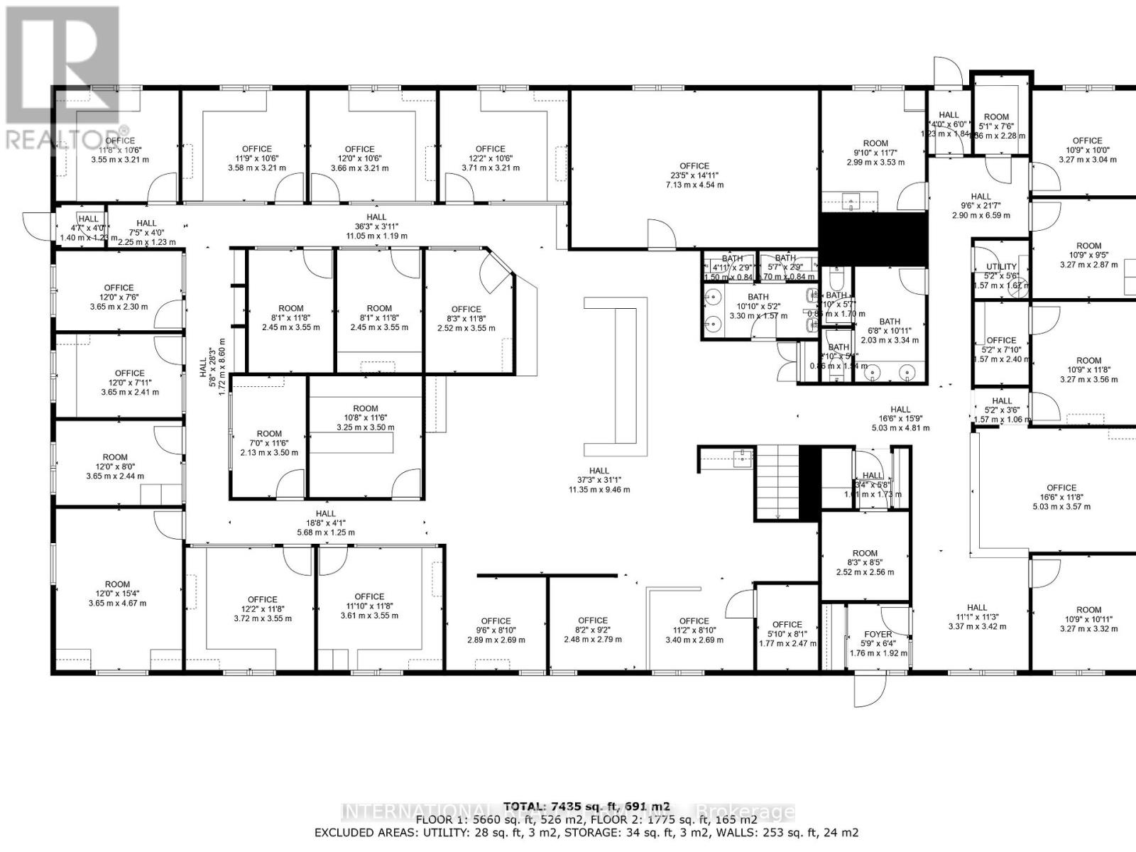
East Village | CanalSide Flex Office/Industrial | Income + Vacancy Position your business or portfolio at the SW corner of Clarence St & Welland St steps to the Welland Canal. The property offers ~ 8,000 sf across two levels with ~25 private offices, collaboration rooms and a paved onsite lot. Paved parking area for 30+ vehicles. Current layout supports office, professional services, technical trades, training/education and light industrial users. ~6,200 sf is leased to Miller Paving Group; ~1,800 sf is available immediately, with seller indicating the ability to deliver full or partial vacancy within ~3-6 months. The Light Industrial zoning is exceptionally versatile, allowing contractors yard, light industry, education facility, motor vehicle repair, research facility, and accessory office/retail/restaurant options, among others. City is very supportive of improving the area. The location benefits from Port Colborne's record cruise season (70+ calls Apr - Oct) and continued waterfront activation. Well built free standing building. More area can be build if required. A rare owner user purchase with income, or a straight forward lease up for investors. (id:60365)

Property Details

MLS® Number X12379411
Property Type Industrial
Community Name 876 - East Village

Building

CoolingType Fully Air Conditioned
HeatingFuel Natural Gas
HeatingType Forced Air
SizeInterior 8300 Sqft
UtilityWater Municipal Water

Land

Acreage Yes
SizeIrregular 300.0
SizeTotal 300 Ac
SizeTotalText 300 Ac
ZoningDescription Light Industrial - Commercial, Office

https://www.realtor.ca/real-estate/28810787/198-welland-street-port-colborne-east-village-876-east-village

Rakesh Kumar Gupta
Broker


International Realty Firm, Inc.
2 Sheppard Avenue East, 20th Floor
Toronto, Ontario M2N 5Y7

Amanda Hoolihan
Broker


RE/MAX Aboutowne Realty Corp.
1235 North Service Rd W #100d
Oakville, Ontario L6M 3G5

Your Favourites

 

No Favourites Found