Skip to main content


LOADING

105 - 15 Maryport Ave Street Toronto, Ontario M3M 0E2

3 Bedroom 3 Bathroom 1200 - 1399 sqft
Central Air Conditioning Forced Air

$3,300 Monthly

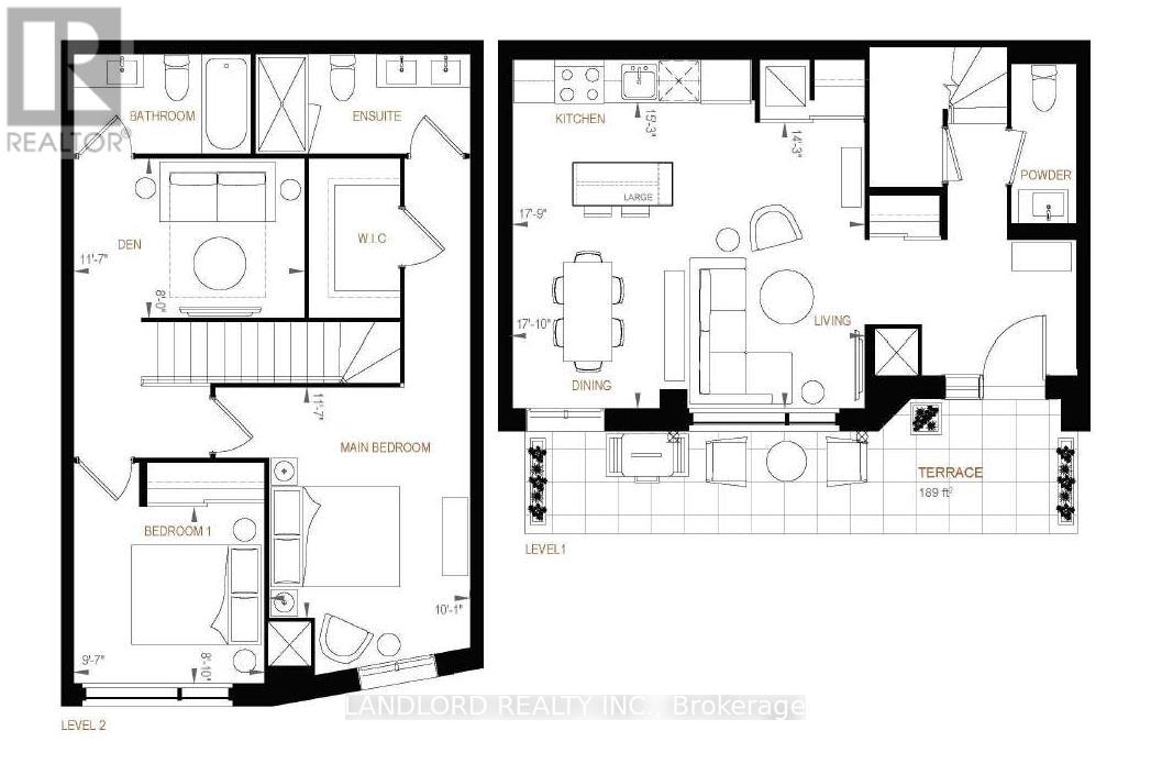
Vacant move in ready 1264 sqft unfurnished professionally managed two-level stacked town house 2-bedroom 2.5-bathroom plus den, part of The Keeley: A new development overlooking the lake of Downsview Park and walking distance to Downsview train & subway stations (little as ~20 minutes to downtown)! Parking and locker included. Layout is two levels, up to 9' ceiling heights, first floor consisting of open plan kitchen/living area (walking out to the fully fenced front patio via large foyer), 2pc bathroom by foyer, double-width laundry closet, two huge windows facing to street. Second floor consisting of primary bedroom (with 3pc bath, east exposure, walk in closet, second bedroom (with built-in closet) opposite on the layout from 4pc bath and den overlooking stairwell. Floor plans in listing images and attached to listing. Features and finishes include: engineered wood flooring throughout, stone countertops, stone backsplash, Whirlpool stainless steel appliances, Blomberg laundry machines, two-tone kitchen cabinets, tiled tub & shower stalls, pot lights, and more! || Appliances: Fridge, electric range, range microwave, dishwasher, washer, dryer. All existing window coverings. All existing light fixtures. || Building Amenities: Refer to listing images to see all! || Utilities: Metering of utilities by Carma. (id:60365)

Property Details

MLS® Number W12841264
Property Type Single Family
Community Name Downsview-Roding-CFB
CommunityFeatures Pets Allowed With Restrictions
Features In Suite Laundry
ParkingSpaceTotal 1

Building

BathroomTotal 3
BedroomsAboveGround 2
BedroomsBelowGround 1
BedroomsTotal 3
Age 0 To 5 Years
Amenities Storage - Locker
BasementType None
CoolingType Central Air Conditioning
ExteriorFinish Brick
HalfBathTotal 1
HeatingFuel Other
HeatingType Forced Air
StoriesTotal 2
SizeInterior 1200 - 1399 Sqft
Type Apartment

Parking

Underground
Garage

Land

Acreage No

https://www.realtor.ca/real-estate/29423030/105-15-maryport-ave-street-toronto-downsview-roding-cfb-downsview-roding-cfb

Brandon William Sage
Salesperson


Landlord Realty Inc.
515 Logan Ave
Toronto, Ontario M4K 3B3

Your Favourites

 

No Favourites Found