Skip to main content


LOADING

1 - 649 Ontario Street Stratford, Ontario N5A 3J6

15613 sqft
Fully Air Conditioned Other Acreage

$10 / ft2

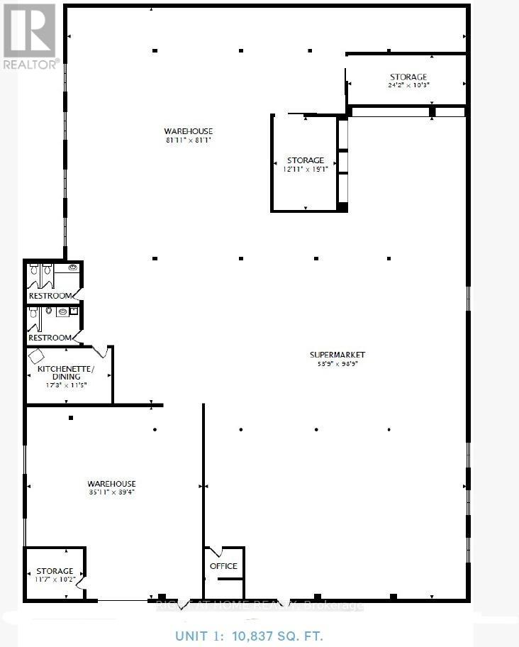
Offering 10,837 SF of flexible commercial space in a high-traffic, high visibility location on Stratfords main commercial corridor. Positioned alonge a major arterial. route, the property benefits from outstanding exposure and is surrounded by national and local retailers including Walmart, Zehrs, Tim Hortons, Dairy Queen, and more. C2 zoning permits a broad range of uses, including medical, automative sales or service, personal service, studio, place of worship, and other commercial applications. On-site surface parking convenience for both customers and staff. (id:60365)

Business

BusinessType Industrial
BusinessSubType Warehouse

Property Details

MLS® Number X12685206
Property Type Industrial
Community Name Stratford

Building

CoolingType Fully Air Conditioned
HeatingType Other
SizeInterior 15613 Sqft
Type Warehouse
UtilityWater Municipal Water

Land

Acreage Yes
SizeDepth 230 Ft ,8 In
SizeFrontage 329 Ft ,9 In
SizeIrregular 1.555
SizeTotal 1.555 Ac
SizeTotalText 1.555 Ac
ZoningDescription C2

https://www.realtor.ca/real-estate/29238916/1-649-ontario-street-stratford-stratford

Azeta Ghaeinizadeh
Salesperson


Right At Home Realty
1396 Don Mills Rd Unit B-121
Toronto, Ontario M3B 0A7

Your Favourites

 

No Favourites Found