Skip to main content


LOADING

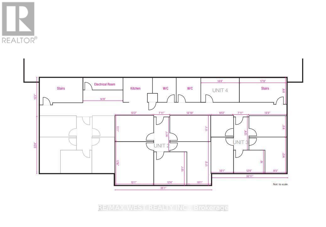
1 - 205 Export Boulevard W Mississauga, Ontario L5S 1Z2

2 Bathroom 1430 sqft
Fully Air Conditioned Forced Air

$2,900 Monthly

Bright updated office space with high ceilings. 2nd level walkup space with wide staircases. Ample parking. Common area consists of large reception and kitchen with 2 washrooms. Fibre optic and unit security available to the building. Offices are clean and in move in condition. Tenant cleans their own usable space and Landlord cleans common areas. (id:60365)

Property Details

MLS® Number W12389936
Property Type Office
Community Name Gateway

Building

BathroomTotal 2
CoolingType Fully Air Conditioned
HeatingFuel Natural Gas
HeatingType Forced Air
SizeInterior 1430 Sqft
Type Offices
UtilityWater Municipal Water

Land

Acreage No
SizeDepth 143 M
SizeFrontage 33 M
SizeIrregular 33 X 143 M
SizeTotalText 33 X 143 M
ZoningDescription E2

https://www.realtor.ca/real-estate/28832919/1-205-export-boulevard-w-mississauga-gateway-gateway

Grant Fisher
Salesperson


RE/MAX West Realty Inc.
9-1 Queensgate Boulevard
Bolton, Ontario L7E 2X7

Your Favourites

 

No Favourites Found